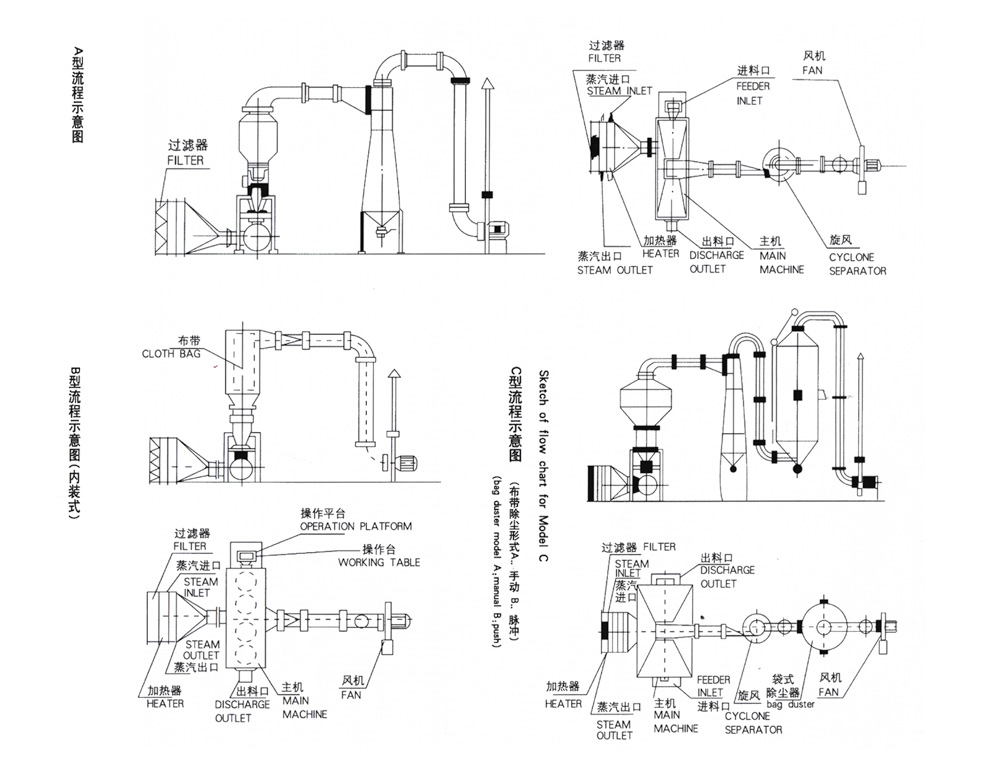
散粒状气体物品管理由加给料机加盟流化床干热器中。滤过后的清洁气受热后由鼓离心风机送进流化床下端经数据分布板与气体物品管理了解,出现流态化达标气固相的热质互换。物品管理干热后由开料口排尽来,有机废气物由放热床部排尽来经漩风排尘设备器和布袋排尘设备器收售很小粉料后面空。
简介:
应用范围:
它适用于散粒状物料的干燥。如:医药药品中的原料药、压片颗粒、中药冲剂、化工原料中的塑料树脂、柠檬酸和其它粉状、颗粒状物料的干燥除湿,食品、食品加工、食品饮品冲剂、玉米胚芽、饲料等的干燥。物料的粒径一般为0.1~6mm,最佳粒径为0.5~3mm。
热源:
技术参数